Registrácia
|
Prihlásiť
Univerzity
Kategórie
Rozšírené vyhľadávanie
Slovenská technická univerzita v Bratislave
Stavebná fakulta
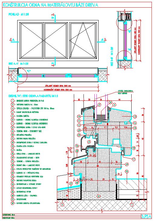
Technický výkres: Konštrukcia okna na materiálovej báze dreva
Skryť detaily
|
Obľúbený
Kvalita:
74,8 %
Typ:
Technický výkres
Univerzita:
Slovenská technická univerzita v Bratislave
Fakulta:
Stavebná fakulta
Kategória:
Technika
Podkategória:
Stavebníctvo
Predmet:
Konštrukcia pozemných stavieb
Autor:
norbi3
Ročník:
3. ročník
Rozsah A4:
6 strán
Zobrazené:
5 550 x
Stiahnuté:
118 x
Veľkosť:
0,4 MB
Formát a prípona:
CAD/CAM súbor (.dwg)
Jazyk:
slovenský
ID projektu:
12627
Posledna úprava:
31.07.2020
Konštrukcia okna na materiálovej báze dreva.
Kľúčové slová:
okná
drevo
drevené okná
detail okna
okno
parapet
nadpražie
ostenie
dutina
dekompresná
dekompresná dutina
krídlo
krídlo okna
parapetná doska
kovanie
okapnica
Hodnotenie (0x):