Registrácia | Prihlásiť

Technický výkres: Konštrukcia oceľovej haly + detaily

Skryť detaily | Obľúbený
Náhľady
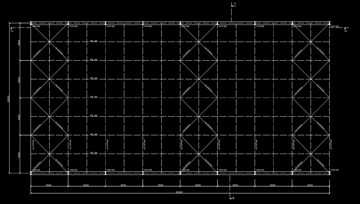
Oceľ hala - konštrukcia + detaily v CADe

Ocelové haly- na tieto objekty sú kladené veľké nároky z hľadiska variability dispozície, rýchlosti montáže (obmedzenie technologických prestávok) alebo variablity napríklad v prípade zmeny časti technologického procesu a potom nutného prepočte konštrukcie alebo overenie únosnosti. Tieto požiadavky často vedú už v počiatku plánovania na použitie ocele ako konštrukčného msteriálu. Je nutné ale tiež spomenúť nevýhody použitia ocele, ktorými je predovšetkým požiarna odolnosť.
Hodnotenie (0x):